پیش فروش 119 متری / محله فردوس

4 سال قبل در تهران، | پیش فروش مسکونی

شماره موبایل


محل

تهران


قیمت

4,500,000,000,000,000 تومان


قابل معاوضه

خیر


دسته بندی

پیش فروش مسکونی


مشخصات :


توضیحات

مناسب با بودجه خود صاحب خانه شوید
سرمایه گذاری مطمعن
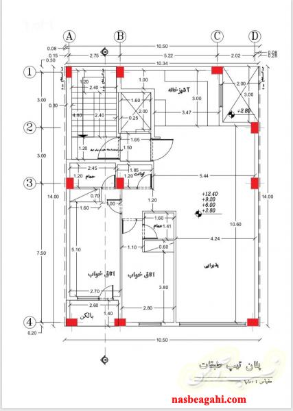
پیش فروش واحدهای 119 متری 2 خوابه مستر
4 طبقه / تک واحدی / فول
سالن و اتاق ها آفتابگیر
تحویل 6 ماهه

هشدار پلیس
لطفاً پیش از انجام معامله و هر نوع پرداخت وجه، از صحت کالا یا خدمات ارائه‌شده، به‌صورت حضوری اطمینان حاصل نمایید.

آگهی های مشابه
خانه دسته ها ثبت آگهی چت حساب من